95 Crown View Dr., Monroe
More...
Share This
Map
Slide show
Hide arrows
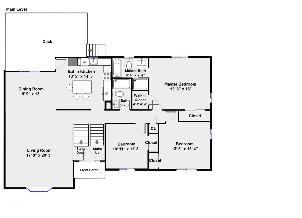
Main Level
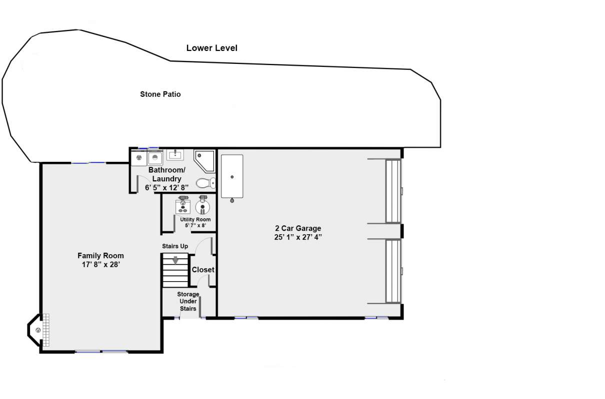
Lower Level
95 Crown View Dr., Monroe
95 Crown View Dr., Monroe
95 Crown View Dr., Monroe
95 Crown View Dr., Monroe
;
Rotate your device