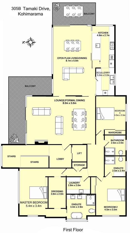
305B Tamaki Drive, Kohimarama
Gary and Vicki Wallace
0274 988 585
More...
Share This
Map
Slide show
Hide arrows
First Floor
Lower
305B Tamaki Drive, Kohimarama
305B Tamaki Drive, Kohimarama
305B Tamaki Drive, Kohimarama
305B Tamaki Drive, Kohimarama
;
Rotate your device