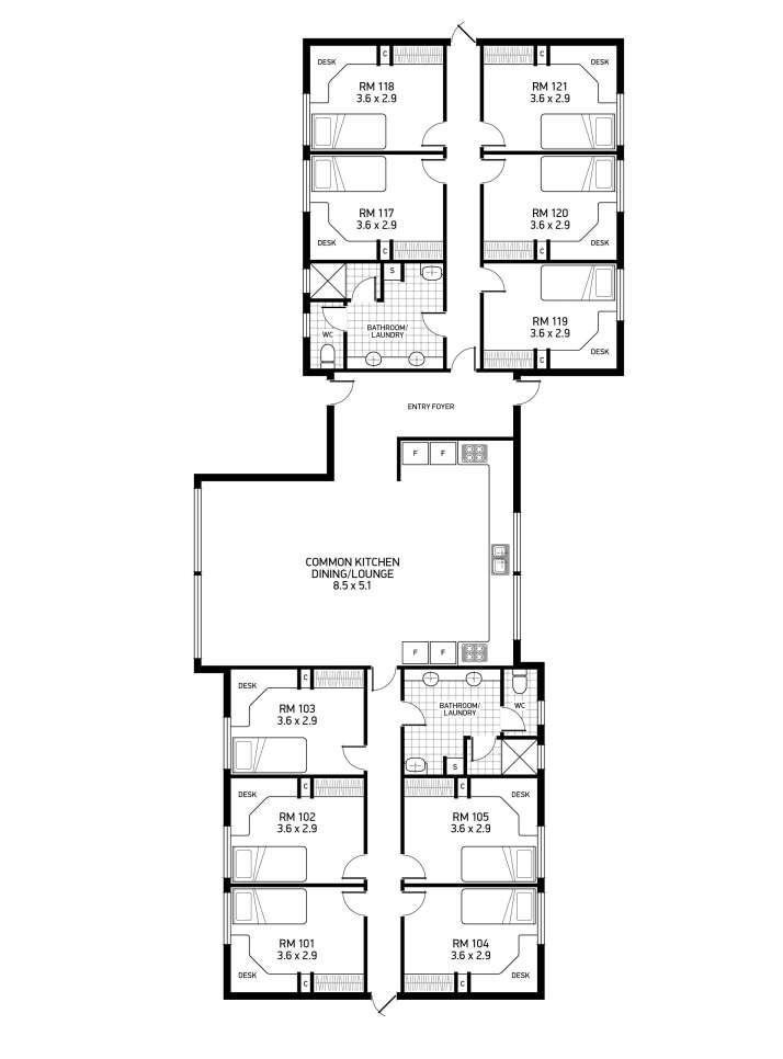
EVATT HOUSE : 10 SHARE APARTMENT
More...
Share This
Slide show
Hide arrows
EVATT HOUSE : 10 SHARE APARTMENT
EVATT HOUSE : 10 SHARE APARTMENT
EVATT HOUSE : 10 SHARE APARTMENT
;
Rotate your device